Virtuvės projektavimas

Projektuojame įvairaus dydžio ir tipo virtuves viešojo maitinimo įmonėse, parengiame technologinius planus , kurie atitiks visus higienos normų reikalavimus. Dirbame su restoranais, kavinėmis, užkandinėmis, valgyklomis, mokyklomis, darželiais ir kitomis maitinimą organizuojančiomis įmonėmis. Profesionalios virtuvės technologinį planą (technologinę dalį) sudaro:

Susisiekite su mumis

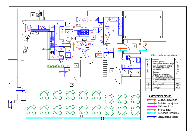
1. Maisto tvarkymo vietos patalpų planas su įrenginių išdėstymu bei gamybiniais srautais

Paruošiamas patalpų su reikiamais įrengimais išplanavimas, numatomi optimalūs sandėliavimo, pagalbinių patalpų, gamybinių patalpų dydžiai. Pateikiamas pagrindinės gamybinės patalpos zonavimas. Paruošiama patalpų eksplikacija su plotais.


2. Profesionalios virtuvės įrangos specifikacija

Paruošiama visų suprojektuotų įrengimų techninė specifikacija su pagrindinėmis techninėmis charakteristikomis.



3. Įrangos prijungimo prie elektros / dujų sistemos planas

Paruošiamas visų technologinės įrangos pajungimo taškų prie elektros / dujų tinklo planas, nurodant tikslią vietą, aukštį ir galingumą, numatomas rezervinės rozetės smulkiai virtuvės įrangai


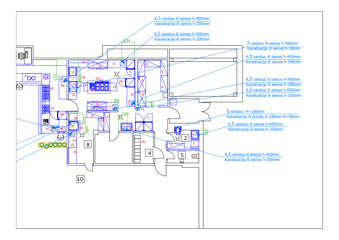
4. Įrangos prijungimo prie vandentiekio, kanalizacijos sistemų planas

Paruošiamas visų technologinės įrangos pajungimo taškų prie šalto /karšto vandens planas, nurodant tikslią vietą, aukštį ir vamzdžių diametrą. Taip pat nurodomi visi nuotekų nuvedimo taškai, vamzdžių diametrai.


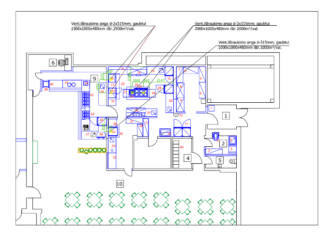
5. Ventiliacijos gaubtų planas

Pateikiamas nutraukiamo oro nuo technologinių įrenginių kiekis, nurodoma gaubtų kabinimo vieta


6. Technologinio proceso aprašymas (aiškinamasis raštas)